Designed by POA Architects, the Wangshan Qingshui Ecological Water Treatment Plant in Wenzhou, Zhejiang has recently been completed and is now undergoing refined landscape and vegetation enhancement. Positioned between urban fabric and natural surroundings, the project establishes a contemporary architectural work that is readable, permeable, and harmoniously integrated with its context.
Water defines the essence of Jiangnan and forms the origin of everyday life.
On a site spanning 47,573 square meters in Qianku Town, eastern Cangnan, Wenzhou, the design avoids constructing a cold, monumental industrial facility. Instead, the water treatment plant grows into an ecological living room that faces the landscape and merges seamlessly with the urban fabric.
A design vision of "Half Landscape, Half City" is now coming to life.

The design originates from an in-depth reading of the site.To the north, Longjin Avenue forms the urban frontage of the plot; an open layout dissolves the rigid boundaries inherent to industrial architecture.The site is bordered to the south by a winding river, where serene ecological landscapes unfold naturally. To the west, traditional residential buildings and a kindergarten outline the gentle warmth of everyday life.
We have always pondered: How can a water treatment plant be more than merely an industrial facility?
We anchor the entire site composition with two primary axes, responding to the dual demands of urban context and natural surroundings.
At their intersection lies an open central courtyard, where a cluster of contemporary Chinese-style courtyards unfolds gently along both axes.

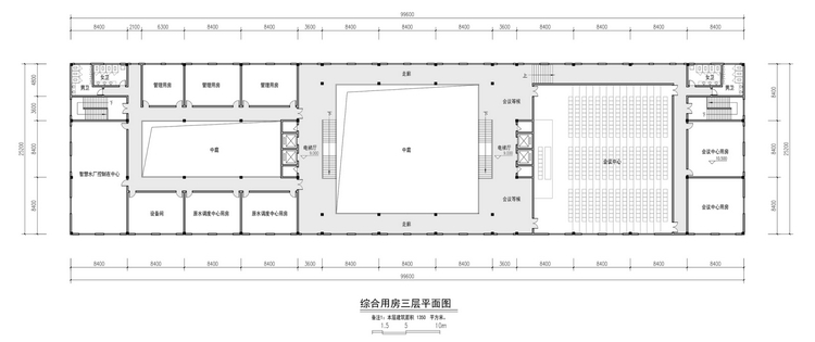
The three-story comprehensive building spans 4,300 square meters, housing Party facilities, a water quality testing center, and a central control center in a well-organized layout. Flexible land reserves are reserved on both sides of the structure, allowing future vertical expansion up to five or six stories and leaving ample room for long-term operational development.

The production zone extends across the southern portion of the site. More than ten types of structures — including distribution chambers, sand filtration tanks, and membrane purification workshops — are arranged following a clear functional sequence.
A fully independent circulation system has been implemented on site. Pedestrian and vehicle flows are strictly separated: vehicle access and service entrances are discreetly concealed on the western side, while the main pedestrian entrance opens openly toward the urban avenue to the north. The design ensures operational safety while maintaining excellent public accessibility.


Turning toward the southern riverbank, the view along the water is fully opened up, seamlessly integrating the ecological landscape into the entire plant compound.

Transparent spaces interweave with lush greenery, endowing the industrial facility with a gentle, breathing quality. The site features a green coverage ratio of 30.06% and a floor area ratio of 0.26. Wild rapeseed blossoms harmonize gracefully with contemporary architecture. Behind these figures lies a truly breathable water treatment plant.
We adopt transparent glass curtain walls and gradient metal screens to blur the boundaries between interior and exterior spaces.
The design ensures ample natural lighting and privacy for the interior, while allowing the facade to reveal rich textural layers that shift with light, shadow and the changing seasons.

It is not an isolated industrial facility, but an integral part of the city, daily life, and the natural landscape.
As we have always believed: infrastructure can also become a warm, welcoming urban living room.

Master Plan
1st Floor Plan
3rd Floor Plan
Section

Elevation
Wangshan Ecological Water Treatment Plant
Wenzhou, China | 2022–2026
Project Type: Municipal Infrastructure
Site Area: 47,573 m²
Total Floor Area: 13,080 m²
Building Height: 24 meters
Lead Partners: Pan Chengshou, Julia
Design Team: Jason.L, Zheng Ruihua, Lin Ziyu, Xiao Qiang, Wang Xinran
Client: Cangnan Water Group Co., Ltd.
Architectural Design: POA Architects
Class-A Design Institute: North China Municipal Engineering Design & Research Institute Co., Ltd.
General Contractor: Zhejiang No.2 Construction Group Co., Ltd.
Photography: StudioSZ